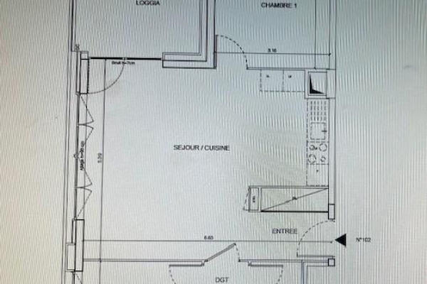
Appartement T2 de 60 m² à louer à NANTES
A LOUER - NANTES PROCE - Appartement T2 bis de 60m² - A LOUER - NANTES PROCE - Agréable appartement rénové type 2 Bis de 60 m² au rdc, situé dans une petit copropriété rue de grillaud et comprenant : Une vaste entrée avec placard, un salon/séjour sur parquet , une cuisine séparée aménagée et équipée (plaques et hotte), une chambre avec placard, un...











