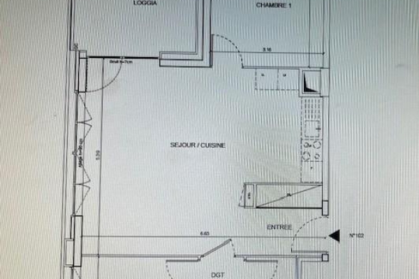
Appartement T2 de 52 m² à louer à NANTES
A LOUER - NANTES - TALENSAC - Appartement 2 pièces de 52.91m2 - Au cœur du centre ville, à deux pas des commerces et des transports (tramways et bus), bel appartement de 2 pièces de 52.91m². Situé au 2ème étage sur 3 de cet immeuble sans ascenseur, ce logement lumineux exposé sud-ouest comprend, une entrée, WC, une pièce vie, une cuisine séparée a...











