Appartement T3 de 65 m² à louer à NANTES
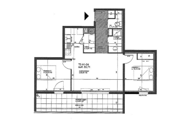
A LOUER- NANTES CITE DES CONGRES - APPARTEMENT T3 de 65m² - GARAGE - VUE - Vue sur le Canal, proche toutes commodités et transports, un appartement de type 3, d'une superficie de 65m², situé au 7ème étage, comprenant : une entrée avec 2 placards, une cuisine aménagée séparée, un séjour avec balcon de 8m², deux chambres dont une avec placard, une s...











