Louer appartement 2 pièces de 41 m²
Présentation
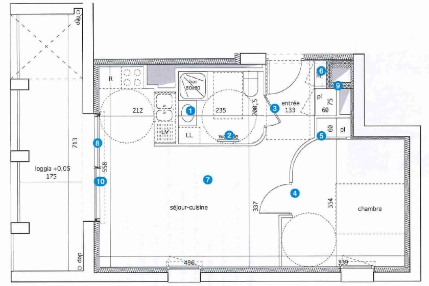
A LOUER - NANTES - GARE SUD - Appartement RECENT 2 pièces de 41.40 m² - Au cœur de ce nouveau quartier, à deux pas des commerces et des transports (bus, tramway ligne 1, Busway et trains), bel appartement de 2 pièces. Situé au 3ème étage de cette résidence avec ascenseur, ce logement vous offre : une entrée avec placard, un séjour ensoleillé ouvert sur une cuisine aménagée, le tout donnant sur une loggia exposée sud/est de 12.30 m², une chambre, et une salle d'eau avec WC. Pas de place de parking.
Chauffage et eau chaude : COLLECTIF.
CONDITIONS DE RESSOURCES : LOI PINEL.
Charges comprises : entretien des parties communes, eau chaude, chauffage et eau froide.
Classe énergétique : B
Logement Eligible à VISALE
Vous avez entre 18 et 30 ans ou si vous être salariés de + de 30 ans
Testez votre éligibilité sur le site de https://www.visale.fr/
Agent de location : Sarah BRISSON - 06.07.22.79.75. Le bien est soumis au statut de la copropriété.
Loyer de 667,42 euros par mois charges comprises dont 100,00 euros par mois de provision pour charges (soumis à la régularisation annuelle).
Les honoraires charge locataire sont de 543,00 euros ( soit 13,12 euros/m² ) dont 125,44 euros pour état des lieux ( soit 3,03 euros/m² ).
Montant estimé des dépenses annuelles d'énergie pour un usage standard : entre 300 et 450 euros.
Informations complémentaires
Informations non contractuelles ne pouvant engager la société.
Surfaces approximatives non vérifiées.
Localisation du bien
Demande d'informations
Lefeuvre Immobilier Nantes Sigma 2000
Location | Gestion
Sigma 2000 - 7ème Étage
5 bd Vincent Gâche - CS 16327
44263 - Nantes Cedex 2
Service Gestion Locative : 02 46 88 00 39
Service Location : 02 51 72 94 76
Horaires d'ouverture :Du lundi au jeudi de 8h45 à 12h30 et de 13h30 à 17h30.
Le vendredi de 8h45 à 12h00 et de 13h30 à 17h00.
Biens pouvant vous intéresser

