Louer appartement 3 pièces de 62 m²
Présentation
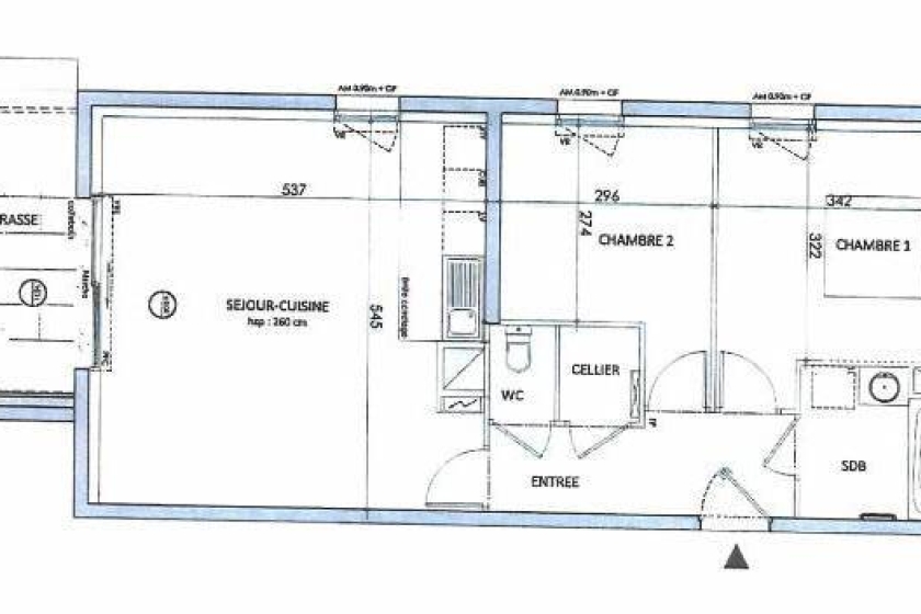
A LOUER - NANTES - Appartement 3 pièces de 62.60m² - REZ-DE-CHAUSSEE - TERRASSE - GARAGE - Dans une résidence de 2018, proche des commerces et des transports, bel appartement en rez-de-chaussée de type 3 de 62,60m². Ce logement vous offre une entrée, un séjour avec coin cuisine aménagée et équipée (plaques de cuisson, four, réfrigérateur et hotte), le tout donnant sur une terrasse de 9.40m², deux chambres, une salle de bains, un cellier et un WC séparé. Garage privatif en sous-sol.
Chauffage et eau chaude : COLLECTIF.
CONDITIONS DE RESSOURCES : LOI PINEL.
Charges comprises : entretien des parties communes, eau chaude, chauffage, entretien chaudière et eau froide.
Classe énergétique : C
Logement Eligible à VISALE
Vous avez entre 18 et 30 ans ou si vous être salariés de + de 30 ans
Testez votre éligibilité sur le site de https://www.visale.fr/
Agent de location : Sarah BRISSON - 06.07.22.79.75. Le bien est soumis au statut de la copropriété.
Loyer de 808,37 euros par mois charges comprises dont 130,00 euros par mois de provision pour charges (soumis à la régularisation annuelle).
Les honoraires charge locataire sont de 821,31 euros ( soit 13,12 euros/m² ) dont 189,68 euros pour état des lieux ( soit 3,03 euros/m² ).
Montant estimé des dépenses annuelles d'énergie pour un usage standard : entre 460 et 670 euros. Prix moyens des énergies indexés en 2023.
Informations complémentaires
Informations non contractuelles ne pouvant engager la société.
Surfaces approximatives non vérifiées.
Localisation du bien
Demande d'informations
Lefeuvre Immobilier Nantes Sigma 2000
Location | Gestion
Sigma 2000 - 7ème Étage
5 bd Vincent Gâche - CS 16327
44263 - Nantes Cedex 2
Service Gestion Locative : 02 46 88 00 39
Service Location : 02 51 72 94 76
Horaires d'ouverture :Du lundi au jeudi de 8h45 à 12h30 et de 13h30 à 17h30.
Le vendredi de 8h45 à 12h00 et de 13h30 à 17h00.

