Louer appartement 3 pièces de 55 m²
Présentation
A LOUER - Appartement T3 NEUF - ORVAULT - PETIT CHANTILLY - Agent de location : Sarah BRISSON - 06 07 22 79 75.
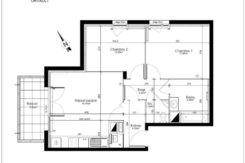
Dans une petite résidence récente de standing et dans le quartier recherché du Petit Chantilly à ORVAULT, un appartement de type 3 de 55m² très bien agencé avec BALCON et place de PARKING. Comprenant une entrée, un séjour donnant sur le balcon exposé OUEST avec cuisine entièrement aménagée et équipée (Four, micro-ondes, lave-vaisselle, réfrigérateur, plaque induction et lave-linge), 2 chambres, une salle de bains et un WC.
Proche transports et commerces. Place de parking PMR en sous-sol sécurisé. Logement NON MEUBLE.
Chauffage et eau chaude : individuel GAZ.
Charges comprises : entretien des parties communes et eau froide.
Classe énergétique : C
Logement Eligible à VISALE
Vous avez entre 18 et 30 ans ou si vous être salariés de + de 30 ans
Testez votre éligibilité sur le site de https://www.visale.fr/
Agent de location : Sarah BRISSON - 06 07 22 79 75. Le bien est soumis au statut de la copropriété.
Loyer de 986,77 euros par mois charges comprises dont 70,00 euros par mois de provision pour charges (soumis à la régularisation annuelle).
Les honoraires charge locataire sont de 716,00 euros ( soit 12,98 euros/m² ) dont 165,45 euros pour état des lieux ( soit 3,00 euros/m² ).
Montant estimé des dépenses annuelles d'énergie pour un usage standard : entre 340 et 530 euros. Prix moyens des énergies indexés en 2021.
Informations complémentaires
Informations non contractuelles ne pouvant engager la société.
Surfaces approximatives non vérifiées.
Localisation du bien
Demande d'informations
Lefeuvre Immobilier Nantes Sigma 2000
Location | Gestion
Sigma 2000 - 7ème Étage
5 bd Vincent Gâche - CS 16327
44263 - Nantes Cedex 2
Service Gestion Locative : 02 46 88 00 39
Service Location : 02 51 72 94 76
Horaires d'ouverture :Du lundi au jeudi de 8h45 à 12h30 et de 13h30 à 17h30.
Le vendredi de 8h45 à 12h00 et de 13h30 à 17h00.
Biens pouvant vous intéresser
