Louer appartement 4 pièces de 78 m²
Présentation
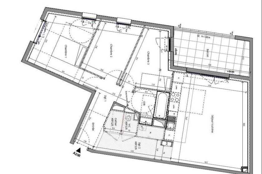
A LOUER NANTES- DURANTIERE Appartement récent T4 de 78.90m² - A LOUER NANTES- DURANTIERE un appartement soumis à la loi PINEL, de type T4 au deuxième étage de 78.9m² composé d'une entrée avec placard et un dégagement, un cellier et wc séparé 3 chambres, une salle de bain, un séjour cuisine aménagée et équipée, avec un balcon.
Chauffage individuel GAZ.
Un garage et une place de parking.
Logement Eligible à VISALE
Vous avez entre 18 et 30 ans ou si vous êtes salariés de + de 30 ans
Testez votre éligibilité sur le site de https://www.visale.fr/
Contacter Julie HIEBLOT 0638641334. Le bien est soumis au statut de la copropriété.
Loyer de 1 087,00 euros par mois charges comprises dont 80,00 euros par mois de provision pour charges (soumis à la régularisation annuelle).
Les honoraires charge locataire sont de 898,00 euros ( soit 11,38 euros/m² ) dont 239,07 euros pour état des lieux ( soit 3,03 euros/m² ).
Montant estimé des dépenses annuelles d'énergie pour un usage standard : entre 550 et 744 euros. Prix moyens des énergies indexés en 2021.
Informations complémentaires
Informations non contractuelles ne pouvant engager la société.
Surfaces approximatives non vérifiées.
Localisation du bien
Demande d'informations
Lefeuvre Immobilier Nantes Sigma 2000
Location | Gestion
Sigma 2000 - 7ème Étage
5 bd Vincent Gâche - CS 16327
44263 - Nantes Cedex 2
Service Gestion Locative : 02 46 88 00 39
Service Location : 02 51 72 94 76
Horaires d'ouverture :Du lundi au jeudi de 8h45 à 12h30 et de 13h30 à 17h30.
Le vendredi de 8h45 à 12h00 et de 13h30 à 17h00.


