Louer appartement 4 pièces de 113 m²

Nantes (44)
1 874 € CC/mois
réf. GES06710006-724
 11 photos  ajouter
Exclusivité

Présentation

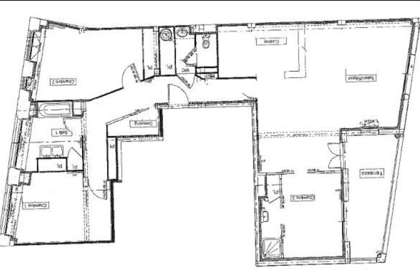
A LOUER - NANTES - NANTES GRASLIN - Appartement 4 pièces de 113,54m² - A LOUER - NANTES - GRASLIN -
Au coeur de ce quartier recherché en plein centre historique, situé au pieds des commerces, très bel appartement de standing de 4 pièces d'environ 113.54 m². Situé au 4ème étage de cette résidence classée entièrement rénovée en 2009, ce logement vous offre une entrée avec placard, une pièce de vie spacieuse sur parquet massif exposée sud donnant sur une terrasse privative avec vue sur le jardin de la copropriété, une cuisine aménagée et équipée (meubles, hotte, plaques de cuisson et four) ouverte sur le séjour, une chambre avec salle d'eau privative donnant sur la terrasse, deux autres chambres avec placard, un dressing, une salle de bains et WC séparés.
Double garage en sous-sol sécurisé.
Chauffage et eau chaude individuels électriques.

Contacter Julie HIEBLOT 06 38 64 13 34. Le bien est soumis au statut de la copropriété.

Loyer de 1 874,00 euros par mois charges comprises dont 160,00 euros par mois de provision pour charges (soumis à la régularisation annuelle).
Les honoraires charge locataire sont de 1 457,00 euros ( soit 12,85 euros/m² ) dont 343,66 euros pour état des lieux ( soit 3,03 euros/m² ).
Montant estimé des dépenses annuelles d'énergie pour un usage standard : entre 1 400 et 1 930 euros. Prix moyens des énergies indexés en 2021.

Informations complémentaires

Type T4
Etage 2
Année 2009
Chauffage Electrique, Individuel, Radiateur
Loyer 1 874 € CC/mois
Honoraires 1 457 €
Nombre de chambres 3
Nombre de pièces 4
Salle(s) de bain 1
Surface habitable 113 m²
Surface séjour 44 m²
Surface terrain -
logement très performant logement extrêmement consommateur d'énergie kWh/m² par an consommation (énergie primaire) kgCO₂/m² par an emissions DPE_ DPE_
kg CO₂/m² par an A B element C D E F G émissions de CO₂ très importantes peu d'émissions de CO₂ * Dont émissions de gaz à effet de serre

 

Localisation du bien

 

Demande d'informations

Lefeuvre Immobilier Nantes Sigma 2000

Location  |  Gestion

Sigma 2000 - 7ème Étage
5 bd Vincent Gâche - CS 16327
44263 - Nantes Cedex 2

Service Gestion Locative : 02 46 88 00 39
Service Location : 02 51 72 94 76

Horaires d'ouverture :Du lundi au jeudi de 8h45 à 12h30 et de 13h30 à 17h30.
Le vendredi de 8h45 à 12h00 et de 13h30 à 17h00.

Fiche de l'agence  Localiser

En soumettant ce formulaire, j'ai bien pris connaissance que les informations saisies seront exploitées dans le cadre de la gestion de ma demande.
Pour en savoir plus, consultez notre Mention d'information sur le traitement des données personnelles Mention d'information sur le traitement des données personnelles.

 

Biens pouvant vous intéresser

Menu