Louer appartement 3 pièces de 78 m²
Présentation
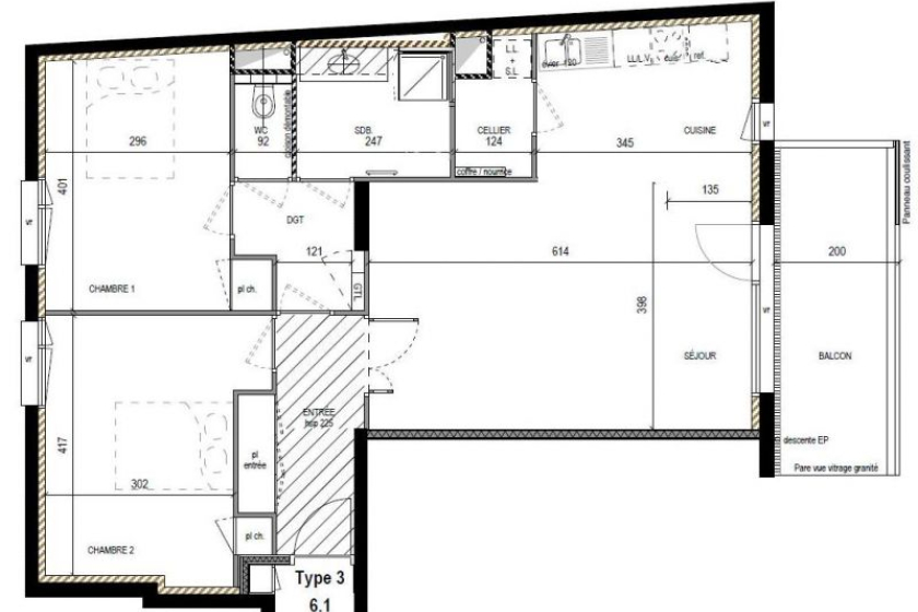
A LOUER - NANTES - ILE GLORIETTE - Appartement 3 pièces de 78 m² (N° 6.1) - A LOUER - NANTES - BORDS DE LOIRE. Dans cette résidence BBC de bon standing, à deux pas de l'hyper centre et des transports, bel appartement de 3 pièces d'une superficie de 78m². Situé au 6ème étage avec ascenseur, ce logement vous offre une entrée avec placards, un séjour exposé plein Sud ouvert sur un balcon face Loire de 9.50 m², une cuisine ouverte séparée de la pièce de vie par une table/bar et équipée de plaques à induction, four et hotte, un cellier, 2 grandes chambres avec placard, une salle d'eau et WC séparés. Un garage et une place de parking en sous-sol sécurisé et un local vélo privatif pouvant faire office de cave. Accès à la salle de sport privée au rez-de-chaussée de l'immeuble.
Chauffage et eau chaude collectifs compris dans les charges.
Charges comprises : entretien des parties communes, eau chaude
Logement Eligible à VISALE
Vous avez entre 18 et 30 ans ou si vous êtes salarié de + de 30 ans
Testez votre éligibilité sur le site de https://www.visale.fr/
Agent de location : Julie HIEBLOT 06.38.64.13.34. Le bien est soumis au statut de la copropriété.
Loyer de 1 429,00 euros par mois charges comprises dont 130,00 euros par mois de provision pour charges (soumis à la régularisation annuelle).
Les honoraires charge locataire sont de 1 128,00 euros ( soit 14,46 euros/m² ) dont 236,34 euros pour état des lieux ( soit 3,03 euros/m² ).
Montant estimé des dépenses annuelles d'énergie pour un usage standard : entre 380 et 560 euros. Prix moyens des énergies indexés en 2021.
Informations complémentaires
Informations non contractuelles ne pouvant engager la société.
Surfaces approximatives non vérifiées.
Localisation du bien
Demande d'informations
Lefeuvre Immobilier Nantes Sigma 2000
Location | Gestion
Sigma 2000 - 7ème Étage
5 bd Vincent Gâche - CS 16327
44263 - Nantes Cedex 2
Service Gestion Locative : 02 46 88 00 39
Service Location : 02 51 72 94 76
Horaires d'ouverture :Du lundi au jeudi de 8h45 à 12h30 et de 13h30 à 17h30.
Le vendredi de 8h45 à 12h00 et de 13h30 à 17h00.


