Louer appartement 3 pièces de 70 m²

Nantes (44)
975 € CC/mois
réf. GES08350038-724
 11 photos  ajouter
Exclusivité

Présentation

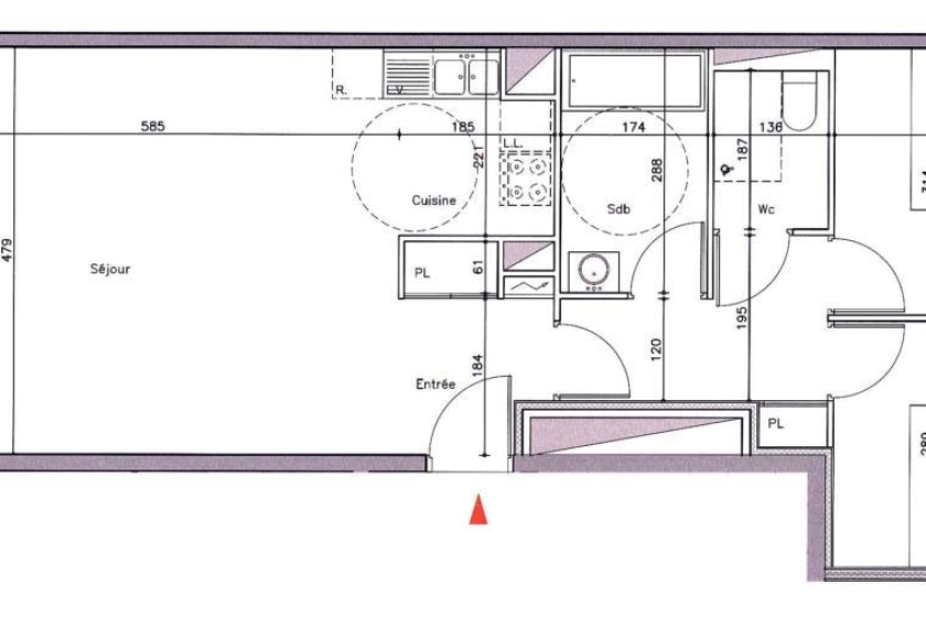
A LOUER- NANTES - MANGIN - Appartement T3 de 70.71m² - A LOUER- NANTES - MANGIN - Appartement T3 de 70.71m², LOI SCELLIER INTERMEDIAIRE , 6ème étage comprenant :une entrée, un dégagement avec placard, un séjour avec coin cuisine le tout donnant sur une loggia de 8.17m², un wc séparé, une salle de bains, deux chambres dont une avec placard.
Chauffage et eau chaude collectifs au gaz. Eau froide et entretien des parties communes inclus dans les charges.
Le bien dispose d'une place de parking en sous sol.

Logement Eligible à VISALE
Vous avez entre 18 et 30 ans ou si vous être salariés de + de 30 ans
Testez votre éligibilité sur le site de https://www.visale.fr/

Contacter Julie HIEBLOT 06 38 64 13 34. Le bien est soumis au statut de la copropriété.

Loyer de 975,00 euros par mois charges comprises dont 140,00 euros par mois de provision pour charges (soumis à la régularisation annuelle).
Les honoraires charge locataire sont de 761,00 euros ( soit 10,78 euros/m² ) dont 211,83 euros pour état des lieux ( soit 3,00 euros/m² ).
Montant estimé des dépenses annuelles d'énergie pour un usage standard : entre 300 et 440 euros. Prix moyens des énergies indexés en 2021.

Informations complémentaires

Type T3
Etage 6
Année -
Chauffage Gaz, Collectif, Radiateur
Loyer 975 € CC/mois
Honoraires 761 €
Nombre de chambres -
Nombre de pièces 3
Salle(s) de bain -
Surface habitable 70 m²
Surface séjour -
Surface terrain -
logement très performant logement extrêmement consommateur d'énergie kWh/m² par an consommation (énergie primaire) kgCO₂/m² par an emissions DPE_ DPE_
kg CO₂/m² par an A B C D E F G émissions de CO₂ très importantes peu d'émissions de CO₂ * Dont émissions de gaz à effet de serre

 

Localisation du bien

 

Demande d'informations

Lefeuvre Immobilier Nantes Sigma 2000

Location  |  Gestion

Sigma 2000 - 7ème Étage
5 bd Vincent Gâche - CS 16327
44263 - Nantes Cedex 2

Service Gestion Locative : 02 46 88 00 39
Service Location : 02 51 72 94 76

Horaires d'ouverture :Du lundi au jeudi de 8h45 à 12h30 et de 13h30 à 17h30.
Le vendredi de 8h45 à 12h00 et de 13h30 à 17h00.

Fiche de l'agence  Localiser

En soumettant ce formulaire, j'ai bien pris connaissance que les informations saisies seront exploitées dans le cadre de la gestion de ma demande.
Pour en savoir plus, consultez notre Mention d'information sur le traitement des données personnelles Mention d'information sur le traitement des données personnelles.

 

Biens pouvant vous intéresser

Menu