Louer appartement 3 pièces de 64 m²
Présentation
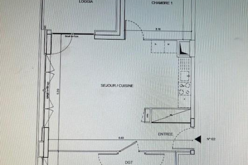
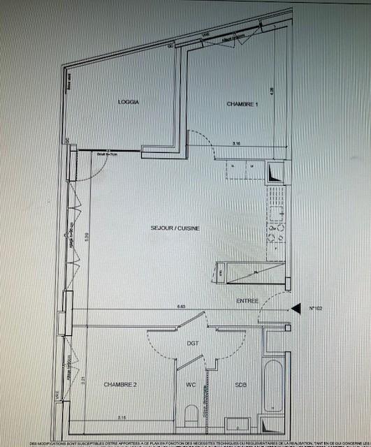
A LOUER - GARE SUD - Appartement de 3 pièces de 64,42m² - - Proche de la gare, à proximité des commerces et des transport. Situé au 10em étage avec ascenseur de cette résidence de 2023, bel appartement comprenant, une entrée sur dégagement desservant, un salon-séjour avec un espace cuisine aménagé et équipé (plaques vitrocéramiques et hotte), le tout donnant sur une belle terrasse de 9.59 m², deux chambres, une salle de bains et WC séparés.
Place de parking en sous-sol.
Les charges comprennent l'eau froide, l'eau chaude, le chauffage et l'entretien des parties communes.
Logement Eligible à VISALE
Vous avez entre 18 et 30 ans ou si vous être salariés de + de 30 ans
Testez votre éligibilité sur le site de https://www.visale.fr/
Agent de location : Julie HIEBLOT 06.38.64.13.34. Le bien est soumis au statut de la copropriété.
Loyer de 858,00 euros par mois charges comprises dont 110,00 euros par mois de provision pour charges (soumis à la régularisation annuelle).
Les honoraires charge locataire sont de 748,00 euros ( soit 11,61 euros/m² ) dont 193,26 euros pour état des lieux ( soit 3,00 euros/m² ).
Montant estimé des dépenses annuelles d'énergie pour un usage standard : entre 397 et 538 euros. Prix moyens des énergies indexés en 2021.
Informations complémentaires
Informations non contractuelles ne pouvant engager la société.
Surfaces approximatives non vérifiées.
Localisation du bien
Demande d'informations
Lefeuvre Immobilier Nantes Sigma 2000
Location | Gestion
Sigma 2000 - 7ème Étage
5 bd Vincent Gâche - CS 16327
44263 - Nantes Cedex 2
Service Gestion Locative : 02 46 88 00 39
Service Location : 02 51 72 94 76
Horaires d'ouverture :Du lundi au jeudi de 8h45 à 12h30 et de 13h30 à 17h30.
Le vendredi de 8h45 à 12h00 et de 13h30 à 17h00.
Biens pouvant vous intéresser

