Louer appartement 3 pièces de 64 m²

Nantes (44)
824 € CC/mois
réf. GES13610022-724
 2 photos  ajouter
Exclusivité

Présentation

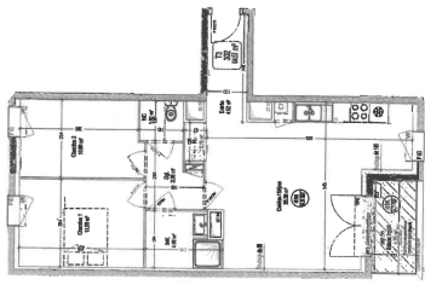
A LOUER - NANTES PORTE D'ARMOR - Appartement T3 de 64.57m² - A LOUER - NANTES PORTE D'ARMOR - Appartement T3 de 64.57m² situé au 3ème étage avec une loggia de 4.35m², comprenant : une entrée, un salon avec une cuisine aménagée et équipée (plaque, hotte et réfrigérateur), 2 chambres, une salle d'eau et un WC séparé.
Place de parking en sous sol. Chauffage et eau chaude individuel gaz.
CONDITIONS DE RESSOURCES : PINEL.
Charges comprises : Eau froide et entretien des communs.

Contacter Julie HIEBLOT : 06 38 64 13 34. Le bien est soumis au statut de la copropriété.

Loyer de 824,00 euros par mois charges comprises dont 110,00 euros par mois de provision pour charges (soumis à la régularisation annuelle).
Les honoraires charge locataire sont de 665,00 euros ( soit 10,30 euros/m² ) dont 195,65 euros pour état des lieux ( soit 3,03 euros/m² ).
Montant estimé des dépenses annuelles d'énergie pour un usage standard : entre 530 et 780 euros. Prix moyens des énergies indexés en 2021.

Informations complémentaires

Type T3
Etage 3
Année -
Chauffage Gaz, Individuel, Radiateur
Loyer 824 € CC/mois
Honoraires 665 €
Nombre de chambres 2
Nombre de pièces 3
Salle(s) de bain -
Surface habitable 64 m²
Surface séjour 28 m²
Surface terrain -
logement très performant logement extrêmement consommateur d'énergie kWh/m² par an consommation (énergie primaire) kgCO₂/m² par an emissions DPE_ DPE_
kg CO₂/m² par an A B C D E F G émissions de CO₂ très importantes peu d'émissions de CO₂ * Dont émissions de gaz à effet de serre

 

Localisation du bien

 

Demande d'informations

Lefeuvre Immobilier Nantes Sigma 2000

Location  |  Gestion

Sigma 2000 - 7ème Étage
5 bd Vincent Gâche - CS 16327
44263 - Nantes Cedex 2

Service Gestion Locative : 02 46 88 00 39
Service Location : 02 51 72 94 76

Horaires d'ouverture :Du lundi au jeudi de 8h45 à 12h30 et de 13h30 à 17h30.
Le vendredi de 8h45 à 12h00 et de 13h30 à 17h00.

Fiche de l'agence  Localiser

En soumettant ce formulaire, j'ai bien pris connaissance que les informations saisies seront exploitées dans le cadre de la gestion de ma demande.
Pour en savoir plus, consultez notre Mention d'information sur le traitement des données personnelles Mention d'information sur le traitement des données personnelles.

 

Biens pouvant vous intéresser

Menu