Louer appartement 3 pièces de 60 m²

Nantes (44)
1 038 € CC/mois
réf. GES12090143-724
 6 photos  ajouter
Exclusivité

Présentation

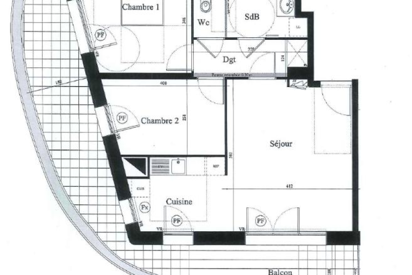
A LOUER - NANTES Gare Sud - Appartement 3 pièces MEUBLE de 60 m² - Au cœur de ce nouveau quartier à deux pas des commerces et des transports, bel appartement de 3 pièces MEUBLE de 60 m². Situé au 13ème étage de cette résidence avec ascenseur, il se compose d'un séjour avec cuisine ouverte aménagée et équipée (plaques de cuisson, hotte, four, réfrigérateur, lave vaisselle et micro-ondes) le tout donnant sur un balcon de 26.30 m² exposé sud/ouest avec vue dégagée, 2 chambres ayant accès au balcon, une salle de bains et WC séparés. Une place de parking en sous-sol sécurisé.
Chauffage et eau chaude : COLLECTIF.
Charges comprises : entretien des parties communes, eau chaude, chauffage et eau froide.
Classe énergétique : B
Logement Eligible à VISALE
Vous avez entre 18 et 30 ans ou si vous être salariés de + de 30 ans
Testez votre éligibilité sur le site de https://www.visale.fr/
Agent de location : Sarah BRISSON - 06.07.22.79.75. Le bien est soumis au statut de la copropriété.

Loyer de 1 037,65 euros par mois charges comprises dont 100,00 euros par mois de provision pour charges (soumis à la régularisation annuelle).
Les honoraires charge locataire sont de 787,00 euros ( soit 13,12 euros/m² ) dont 181,80 euros pour état des lieux ( soit 3,03 euros/m² ).
Montant estimé des dépenses annuelles d'énergie pour un usage standard : entre 330 et 490 euros. Prix moyens des énergies indexés en 2023.

Informations complémentaires

Type T3
Etage 13
Année 2016
Chauffage Gaz, Collectif, Radiateur
Loyer 1 038 € CC/mois
Honoraires 787 €
Nombre de chambres 2
Nombre de pièces 3
Salle(s) de bain 1
Surface habitable 60 m²
Surface séjour 20 m²
Surface terrain -
logement très performant logement extrêmement consommateur d'énergie kWh/m² par an consommation (énergie primaire) kgCO₂/m² par an emissions DPE_ DPE_
kg CO₂/m² par an A B element C D E F G émissions de CO₂ très importantes peu d'émissions de CO₂ * Dont émissions de gaz à effet de serre

 

Localisation du bien

 

Demande d'informations

Lefeuvre Immobilier Nantes Sigma 2000

Location  |  Gestion

Sigma 2000 - 7ème Étage
5 bd Vincent Gâche - CS 16327
44263 - Nantes Cedex 2

Service Gestion Locative : 02 46 88 00 39
Service Location : 02 51 72 94 76

Horaires d'ouverture :Du lundi au jeudi de 8h45 à 12h30 et de 13h30 à 17h30.
Le vendredi de 8h45 à 12h00 et de 13h30 à 17h00.

Fiche de l'agence  Localiser

En soumettant ce formulaire, j'ai bien pris connaissance que les informations saisies seront exploitées dans le cadre de la gestion de ma demande.
Pour en savoir plus, consultez notre Mention d'information sur le traitement des données personnelles Mention d'information sur le traitement des données personnelles.

 

Biens pouvant vous intéresser

Menu