Louer appartement 3 pièces de 55 m²
Présentation
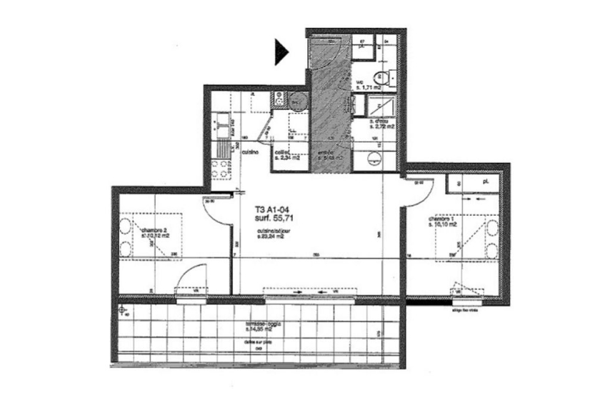
A LOUER - NANTES - PARC DE LA GRENERAIE - Appartement 3 pièces de 55.71 m² - Dans cette résidence récente de 2009 sur les bords de Loire, aux pieds du busway (ligne 4) et de toutes commodités, agréable appartement de 3 pièces de 55.71m². Situé en rez-de-chaussé sécurisé côté jardin, ce logement ensoleillé vous offre une entrée avec placard et wc, un séjour lumineux avec cuisine ouverte le tout donnant sur une vaste terrasse de 14.85 m² exposée sud avec vue sur les espaces verts, un cellier, deux chambres dont une avec placard et une salle d'eau. Garage en sous-sol. Chauffage et eau individuels électriques.
Logement Eligible à VISALE
Vous avez entre 18 et 30 ans ou si vous être salariés de + de 30 ans
Testez votre éligibilité sur le site de https://www.visale.fr/
Agent de location :
Julie HIEBLOT 06.38.64.13.34. Le bien est soumis au statut de la copropriété.
Loyer de 811,00 euros par mois charges comprises dont 52,00 euros par mois de provision pour charges (soumis à la régularisation annuelle).
Les honoraires charge locataire sont de 701,00 euros ( soit 12,75 euros/m² ) dont 165,00 euros pour état des lieux ( soit 3,00 euros/m² ).
Montant estimé des dépenses annuelles d'énergie pour un usage standard : entre 1 100 et 1 530 euros. Prix moyens des énergies indexés en 2021.
Informations complémentaires
Informations non contractuelles ne pouvant engager la société.
Surfaces approximatives non vérifiées.
Localisation du bien
Demande d'informations
Lefeuvre Immobilier Nantes Sigma 2000
Location | Gestion
Sigma 2000 - 7ème Étage
5 bd Vincent Gâche - CS 16327
44263 - Nantes Cedex 2
Service Gestion Locative : 02 46 88 00 39
Service Location : 02 51 72 94 76
Horaires d'ouverture :Du lundi au jeudi de 8h45 à 12h30 et de 13h30 à 17h30.
Le vendredi de 8h45 à 12h00 et de 13h30 à 17h00.
Biens pouvant vous intéresser

