Louer appartement 2 pièces de 47 m²

Nantes (44)
926 € CC/mois
réf. GES00780030-724
 8 photos  ajouter
Exclusivité

Présentation

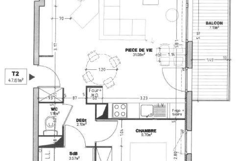
A LOUER - NANTES Cité des congrès - T2 - Au cœur de ce quartier très recherché, à deux pas de l'hyper centre dans un environnement calme et aux pieds de toutes commodités (commerces, transports et gare), bel appartement de 2 pièces de 47.61 m². Situé au 5ème étage avec ascenseur, ce logement ensoleillé vous offre une entrée, un séjour avec cuisine aménagée et équipée (plaques de cuisson, hotte, four et lava vaisselle), le tout donnant sur un balcon de 7.18m², une chambre avec placard, une salle d'eau et WC séparé. Garage en sous-sol. Chauffage et eau chaude : collectif gaz.
Charges comprises : l'entretien des parties communes, l'eau froide, l'eau chaude et le chauffage.

Logement Eligible à VISALE
Vous avez entre 18 et 30 ans ou si vous êtes salarié de + de 30 ans
Testez votre éligibilité sur le site de https://www.visale.fr/
Agent de location : Julie HIEBLOT 06 38 64 13 34. Le bien est soumis au statut de la copropriété.

Loyer de 926,00 euros par mois charges comprises dont 105,00 euros par mois de provision pour charges (soumis à la régularisation annuelle).
Les honoraires charge locataire sont de 750,00 euros ( soit 15,75 euros/m² ) dont 144,26 euros pour état des lieux ( soit 3,03 euros/m² ).
Montant estimé des dépenses annuelles d'énergie pour un usage standard : entre 490 et 700 euros.

Informations complémentaires

Type T2
Etage 5
Année 1994
Chauffage Gaz, Collectif, Radiateur
Loyer 926 € CC/mois
Honoraires 750 €
Nombre de chambres 1
Nombre de pièces 2
Salle(s) de bain -
Surface habitable 47 m²
Surface séjour 31 m²
Surface terrain -
logement très performant logement extrêmement consommateur d'énergie kWh/m² par an consommation (énergie primaire) kgCO₂/m² par an emissions DPE_ DPE_
kg CO₂/m² par an A B C D E F G émissions de CO₂ très importantes peu d'émissions de CO₂ * Dont émissions de gaz à effet de serre

 

Localisation du bien

 

Demande d'informations

Lefeuvre Immobilier Nantes Sigma 2000

Location  |  Gestion

Sigma 2000 - 7ème Étage
5 bd Vincent Gâche - CS 16327
44263 - Nantes Cedex 2

Service Gestion Locative : 02 46 88 00 39
Service Location : 02 51 72 94 76

Horaires d'ouverture :Du lundi au jeudi de 8h45 à 12h30 et de 13h30 à 17h30.
Le vendredi de 8h45 à 12h00 et de 13h30 à 17h00.

Fiche de l'agence  Localiser

En soumettant ce formulaire, j'ai bien pris connaissance que les informations saisies seront exploitées dans le cadre de la gestion de ma demande.
Pour en savoir plus, consultez notre Mention d'information sur le traitement des données personnelles Mention d'information sur le traitement des données personnelles.

 

Biens pouvant vous intéresser

Menu