Louer appartement 1 pièce de 38 m²
Présentation
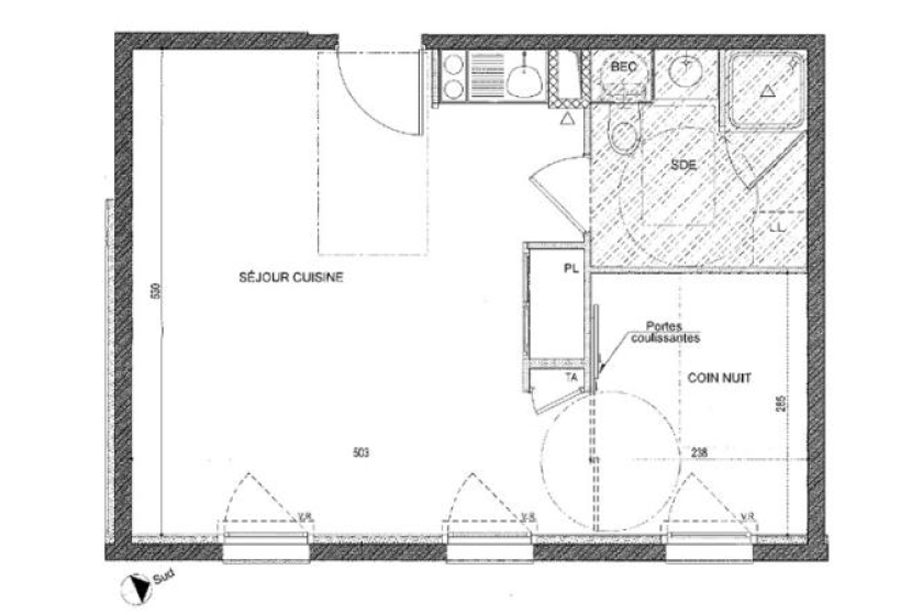
A LOUER - NANTES - ST DONATIEN- Appartement T1 BIS - A LOUER - NANTES - ST DONATIEN - LOI PINEL - Au cœur de ce quartier résidentiel avec ses commerces et les transports à proximité (ligne C1), bel appartement récent de Type T1 bis de 38 m². Situé au rez-de-chaussée de cette résidence aux pieds de la basilic, ce logement vous offre: une grande pièce de vie de 25.84 m² avec coin cuisine équipée (plaques de cuisson, hotte, four et réfrigérateur), un coin nuit séparé par une porte à galandage et une salle d'eau avec WC. Chauffage et eau chaude individuels électriques.
DISPONIBLE. Loyer mensuel charges comprises 515 € (dont 45 € de provisions pour charges soumises à régularisation annuelle) // Dépôt de garantie : 470€ // Honoraires charge locataire TTC 470 € // Classe énergétique : D. Le bien est soumis au statut de la copropriété.
Loyer de 582,00 euros par mois charges comprises dont 45,00 euros par mois de provision pour charges (soumis à la régularisation annuelle).
Les honoraires charge locataire sont de 525,00 euros ( soit 13,74 euros/m² ) dont 115,75 euros pour état des lieux ( soit 3,03 euros/m² ).
Montant estimé des dépenses annuelles d'énergie pour un usage standard : entre 520 et 750 euros. Prix moyens des énergies indexés en 2021.
Informations complémentaires
Informations non contractuelles ne pouvant engager la société.
Surfaces approximatives non vérifiées.
Localisation du bien
Demande d'informations
Lefeuvre Immobilier Nantes Sigma 2000
Location | Gestion
Sigma 2000 - 7ème Étage
5 bd Vincent Gâche - CS 16327
44263 - Nantes Cedex 2
Service Gestion Locative : 02 46 88 00 39
Service Location : 02 51 72 94 76
Horaires d'ouverture :Du lundi au jeudi de 8h45 à 12h30 et de 13h30 à 17h30.
Le vendredi de 8h45 à 12h00 et de 13h30 à 17h00.


