Louer appartement 4 pièces de 85 m²
Présentation
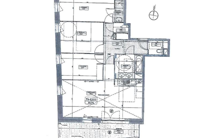
A LOUER - CARQUEFOU - LA FLEURIAYE - Appartement 4 pièces récent de 85.94 m² - Proche du bourg et des commerces. Situé au 2ème étage de cette résidence avec ascenseur, ce bel appartement de Type 4 de 85,94 m² vous offre, une entrée avec placard, WC séparé, un cellier, un séjour avec coin cuisine aménagée et équipée (plaques de cuisson et hotte), le tout donnant sur un balcon exposé plein sud, 3 chambres dont une suite parentale avec salle d'eau, et une salle de bains. Un cellier privatif sur palier.
Deux places de parking en sous-sol. Chauffage et eau chaude : COLLECTIF.
CONDITIONS DE RESSOURCES : LOI PINEL.
Charges comprises : entretien des parties communes, eau chaude, chauffage et eau froide.
Classe énergétique : C
Logement Eligible à VISALE
Vous avez entre 18 et 30 ans ou si vous être salariés de + de 30 ans
Testez votre éligibilité sur le site de https://www.visale.fr/
Agent de location : Sarah BRISSON - 06.07.22.79.75. Le bien est soumis au statut de la copropriété.
Loyer de 1 104,31 euros par mois charges comprises dont 200,00 euros par mois de provision pour charges (soumis à la régularisation annuelle).
Les honoraires charge locataire sont de 904,00 euros ( soit 10,52 euros/m² ) dont 260,40 euros pour état des lieux ( soit 3,03 euros/m² ).
Montant estimé des dépenses annuelles d'énergie pour un usage standard : entre 850 et 1 200 euros. Prix moyens des énergies indexés en 2023.
Informations complémentaires
Informations non contractuelles ne pouvant engager la société.
Surfaces approximatives non vérifiées.
Localisation du bien
Demande d'informations
Lefeuvre Immobilier Nantes Sigma 2000
Location | Gestion
Sigma 2000 - 7ème Étage
5 bd Vincent Gâche - CS 16327
44263 - Nantes Cedex 2
Service Gestion Locative : 02 46 88 00 39
Service Location : 02 51 72 94 76
Horaires d'ouverture :Du lundi au jeudi de 8h45 à 12h30 et de 13h30 à 17h30.
Le vendredi de 8h45 à 12h00 et de 13h30 à 17h00.

