Louer appartement 3 pièces de 64 m²

Carquefou (44)
857 € CC/mois
réf. GES12180073-724
 8 photos  ajouter
Exclusivité

Présentation

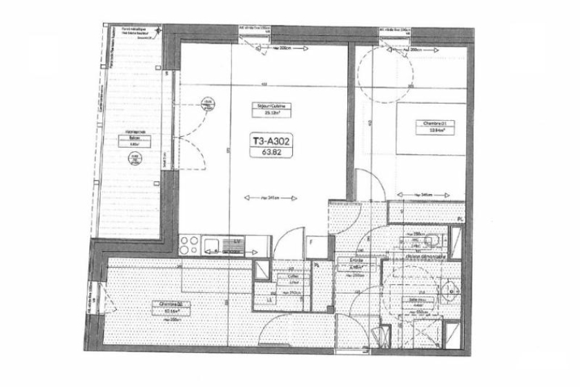
A LOUER -CARQUEFOU - LA FLEURIAYE - Appartement T3 de 63.82m² - CARQUEFOU - LA FLEURIAYE - LOI PINEL.
Proche du bourg et des commerces. Situé au 3ème et dernier étage de cette Résidence de 2016 avec ascenseur, cet appartement de Type 3 de 63,82 m² vous offre, une entrée avec placard, un séjour avec coin cuisine ouverte aménagée et équipée (plaques de cuisson et hotte) le tout donnant sur un balcon exposé ouest, un cellier, 2 chambres dont 1 avec placard, une salle d'eau, et un WC. Débarras privatif sur palier.
Place de parking en sous-sol.
Les provisions pour charges sont soumises à régularisation annuelle pour l'entretien des parties communes, l'eau froide, le chauffage et l'eau chaude.

Contacter Julie HIEBLOT 06 38 64 13 34. Le bien est soumis au statut de la copropriété.

Loyer de 857,00 euros par mois charges comprises dont 115,00 euros par mois de provision pour charges (soumis à la régularisation annuelle).
Les honoraires charge locataire sont de 687,00 euros ( soit 10,73 euros/m² ) dont 192,06 euros pour état des lieux ( soit 3,00 euros/m² ).
Montant estimé des dépenses annuelles d'énergie pour un usage standard : entre 390 et 560 euros. Prix moyens des énergies indexés en 2023.

Informations complémentaires

Type T3
Etage 3
Année 2016
Chauffage Gaz, Collectif, Radiateur
Loyer 857 € CC/mois
Honoraires 687 €
Nombre de chambres 2
Nombre de pièces 3
Salle(s) de bain -
Surface habitable 64 m²
Surface séjour 25 m²
Surface terrain -
logement très performant logement extrêmement consommateur d'énergie kWh/m² par an consommation (énergie primaire) kgCO₂/m² par an emissions DPE_ DPE_
kg CO₂/m² par an A B C D E F G émissions de CO₂ très importantes peu d'émissions de CO₂ * Dont émissions de gaz à effet de serre

 

Localisation du bien

 

Demande d'informations

Lefeuvre Immobilier Nantes Sigma 2000

Location  |  Gestion

Sigma 2000 - 7ème Étage
5 bd Vincent Gâche - CS 16327
44263 - Nantes Cedex 2

Service Gestion Locative : 02 46 88 00 39
Service Location : 02 51 72 94 76

Horaires d'ouverture :Du lundi au jeudi de 8h45 à 12h30 et de 13h30 à 17h30.
Le vendredi de 8h45 à 12h00 et de 13h30 à 17h00.

Fiche de l'agence  Localiser

En soumettant ce formulaire, j'ai bien pris connaissance que les informations saisies seront exploitées dans le cadre de la gestion de ma demande.
Pour en savoir plus, consultez notre Mention d'information sur le traitement des données personnelles Mention d'information sur le traitement des données personnelles.

 

Biens pouvant vous intéresser

Menu