Louer appartement 2 pièces de 44 m²

Carquefou (44)
667 € CC/mois
réf. GES12180038-724
 5 photos  ajouter
Exclusivité

Présentation

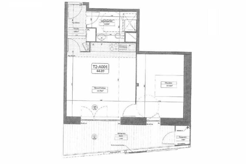
A LOUER - CARQUEFOU - LA FLEURIAYE - Appartement 2 pièces de 44,89m² - Proche du bourg et des commerces. Situé au rez-de-chaussée de cette résidence récente avec ascenseur, cet appartement vous offre, une entrée avec placard, un séjour avec coin cuisine ouverte aménagée et équipée (hotte) le tout donnant sur un grand balcon exposé plein sud, une chambre ayant également un accès sur le balcon, et une salle d'eau avec WC. Débarras privatif sur balcon. Place de parking en sous-sol.
Chauffage et eau chaude : COLLECTIF.
CONDITIONS DE RESSOURCES : LOI PINEL.
Charges comprises : entretien des parties communes, eau chaude, chauffage et eau froide.
Classe énergétique : C
Logement Eligible à VISALE
Vous avez entre 18 et 30 ans ou si vous être salariés de + de 30 ans
Testez votre éligibilité sur le site de https://www.visale.fr/
Agent de location : Sarah BRISSON - 06.07.22.79.75. Le bien est soumis au statut de la copropriété , la copropriété comporte 2 lots.

Loyer de 667,46 euros par mois charges comprises dont 115,00 euros par mois de provision pour charges (soumis à la régularisation annuelle).
Les honoraires charge locataire sont de 538,00 euros ( soit 11,98 euros/m² ) dont 136,02 euros pour état des lieux ( soit 3,03 euros/m² ).
Montant estimé des dépenses annuelles d'énergie pour un usage standard : entre 300 et 460 euros. Prix moyens des énergies indexés en 2021.

Informations complémentaires

Type T2
Etage -
Année 2016
Chauffage Gaz, Collectif, Radiateur
Loyer 667 € CC/mois
Honoraires 538 €
Nombre de chambres 1
Nombre de pièces 2
Salle(s) de bain -
Surface habitable 44 m²
Surface séjour 21 m²
Surface terrain -
logement très performant logement extrêmement consommateur d'énergie kWh/m² par an consommation (énergie primaire) kgCO₂/m² par an emissions DPE_ DPE_
kg CO₂/m² par an A B C D E F G émissions de CO₂ très importantes peu d'émissions de CO₂ * Dont émissions de gaz à effet de serre

 

Localisation du bien

 

Demande d'informations

Lefeuvre Immobilier Nantes Sigma 2000

Location  |  Gestion

Sigma 2000 - 7ème Étage
5 bd Vincent Gâche - CS 16327
44263 - Nantes Cedex 2

Service Gestion Locative : 02 46 88 00 39
Service Location : 02 51 72 94 76

Horaires d'ouverture :Du lundi au jeudi de 8h45 à 12h30 et de 13h30 à 17h30.
Le vendredi de 8h45 à 12h00 et de 13h30 à 17h00.

Fiche de l'agence  Localiser

En soumettant ce formulaire, j'ai bien pris connaissance que les informations saisies seront exploitées dans le cadre de la gestion de ma demande.
Pour en savoir plus, consultez notre Mention d'information sur le traitement des données personnelles Mention d'information sur le traitement des données personnelles.

 

Biens pouvant vous intéresser

Menu