Louer appartement 5 pièces de 160 m²
Présentation
A LOUER_Duplex T5 Neuf de Grand Standing de 160m² _Bordeaux Brazza - A louer_T5 de 160m²_Un bien d'exception au cœur du nouveau Bordeaux
Dans une résidence neuve de standing nichée au cœur du quartier Brazza, rive droite de Bordeaux, ce magnifique appartement T5 en duplex offre un cadre de vie lumineux, contemporain et paisible.
Ses volumes généreux, ses finitions haut de gamme et ses deux terrasses plein ciel en font une adresse rare sur le marché bordelais.
Agencement et confort
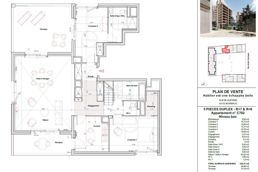
Niveau bas
Entrée avec dégagement spacieux et rangements intégrés
Séjour - salle à manger de plus de 40 m², baigné de lumière, ouvert sur deux terrasses plein ciel totalisant 35 m²
Cuisine séparée moderne et entièrement équipée, avec accès direct à la terrasse
Chambre avec salle d'eau et WC privatifs
Suite parentale avec dressing et salle de bain privative
WC invités séparé
Étage supérieur
Deux chambres avec salle d'eau privative
Espace bibliothèque ou bureau, idéal pour le télétravail
WC séparé
Prestations et standing
Résidence neuve, sécurisée et calme
Double orientation et belle hauteur sous plafond
Baies vitrées panoramiques offrant une luminosité exceptionnelle
Chauffage et rafraîchissement par pompe à chaleur - performance énergétique RE2020
Deux terrasses sans vis-à-vis
Local vélo, espaces verts et cœur d'îlot paysager
2 Stationnements en sous-sol
Localisation privilégiée
Situé rue de Queyries, à deux pas de la Garonne, du pont Chaban-Delmas et de la Cité du Vin, le quartier Brazza incarne le renouveau architectural de Bordeaux.
Vous profiterez d'un environnement mêlant tranquillité, modernité et proximité immédiate des commerces, écoles et transports :
Tram A - Bus - Pistes cyclables vers le centre-ville.
Caractéristiques
Surface habitable : 162,01 m²
Terrasses : 35 m² au total
Étage : R+7 / R+8 (dernier étage)
Type : Duplex T5
Conditions locatives
Type de location : nue
Disponibilité : 01/12/2025
Votre contact pour toutes demandes et visites
@ : location@a-gestion.fr
Tèl : 02 28 55 01 24. Le bien est soumis au statut de la copropriété.
Loyer de 2 571,96 euros par mois charges comprises dont 287,42 euros par mois de provision pour charges (soumis à la régularisation annuelle).
Montant estimé des dépenses annuelles d'énergie pour un usage standard : entre 772 et 1 045 euros.
Informations complémentaires
Informations non contractuelles ne pouvant engager la société.
Surfaces approximatives non vérifiées.
Localisation du bien
Demande d'informations
Lefeuvre Immobilier Nantes Sigma 2000
Location | Gestion
Sigma 2000 - 7ème Étage
5 bd Vincent Gâche - CS 16327
44263 - Nantes Cedex 2
Service Gestion Locative : 02 46 88 00 39
Service Location : 02 51 72 94 76
Horaires d'ouverture :Du lundi au jeudi de 8h45 à 12h30 et de 13h30 à 17h30.
Le vendredi de 8h45 à 12h00 et de 13h30 à 17h00.


